Пречиствателни станции

1
360
Добави коментар
internetreklama45
internetreklama45

В по-малките населени места около град Варна и отдалечените местности често нямат достъп до канализация и чиста вода. Това създава необходимост на бизнеса и домакинствата да търсят алтернативни източници. Ние от Aqua Mip можем да Ви предложим пречиствателни станции за град Варна и околността.

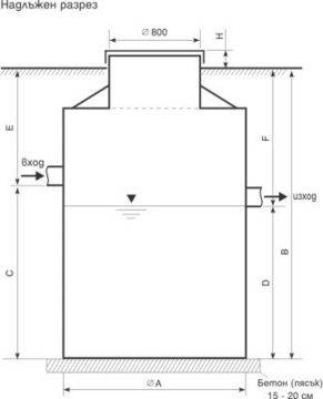
Нашата пречиствателна станция  е съоръжение, което е подходящо за еднофамилни къщи, вили, малки предприятия, горски хижи и други.

В тази категория можете да се запознаете с параметрите, начина на използване, капацитета и предимствата на нашите пречиствателни станции за град Варна.

Обърнете внимание, че информацията е за пречиствателните станции от модел BIO – 6.

Ако не сте запознати с работата и технологията на използване на пречиствателните станции, не се колебайте да се свържете с нас. Дайте ни подробна информация къде се намира мястото, където искате да инсталирате пречиствателна станция и какви са нуждите. И нашите консултанти ще Ви дадат професионален съвет, свързан с пречиствателните станции.

Потърсете ни на телефон: 0885 86 88 11.